Top.Mail.Ru

Лукинская ул., д. 3

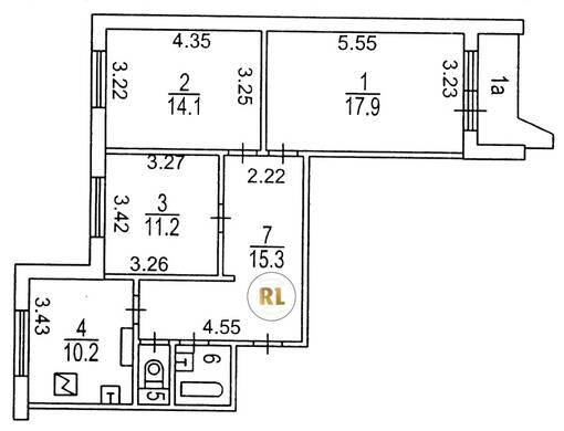
База каталог, Кол-во подъездов: 2, Имеется, П-44, Москва, Ново-Переделкино, Площадь парковки: 0, Пассажирский лифт: 2, От метро: 1210, Западный, нет, Наименьшее кол-во этажей: 17, Наибольшее кол-во этажей: 17, Новопеределкино, Кол-во помещений: 135, Кол-во нежилых помещений: 0, Год ввода в эксплуатацию: 1991, 3-комн, Кол-во жилых помещений: 135, В, дом 3, нет, да, да, да, да, нет, Имеется, Грузовых лифтов: 2, Год постройки: 1991, Лукинская улица, 37.342679, 55.646223
Свяжитесь со мной на счет цены
10 дн.
T55S646223L37S342679T

На карте


Условия сделки

Источник


Старт продаж

Возможно заинтересует