Top.Mail.Ru

Солнцевский проспект, д. 25/2

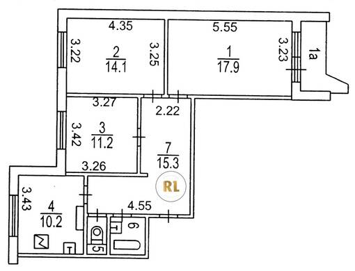
База каталог, Кол-во подъездов: 5, П-44, Москва, Солнцево, Пассажирский лифт: 5, От метро: 1730, Западный, да, Наименьшее кол-во этажей: 17, Наибольшее кол-во этажей: 17, Солнцево, Кол-во помещений: 326, Кол-во нежилых помещений: 1, Год ввода в эксплуатацию: 1987, 3-комн, Кол-во жилых помещений: 325, дом 25/2, нет, да, да, да, нет, нет, Грузовых лифтов: 5, Год постройки: 1987, Солнцевский проспект, 37.414445, 55.646426
Свяжитесь со мной на счет цены
10 дн.
T55S646426L37S414445T

На карте


Условия сделки

Источник


Старт продаж

Возможно заинтересует