Top.Mail.Ru

улица Островитянова, д. 5, к. 2

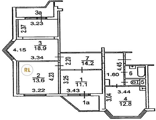
База каталог, Кол-во помещений: 269, П-44T, Москва, Обручевский, Площадь парковки: 0, Пассажирский лифт: 4, От метро: 1680, Юго-Западный, нет, Наименьшее кол-во этажей: 0, Наибольшее кол-во этажей: 17, Тропарёво, Кол-во подъездов: 4, Год ввода в эксплуатацию: 2003, Кол-во нежилых помещений: 0, 3-комн, Кол-во жилых помещений: 269, дом 5, корпус 2, нет, да, да, да, нет, нет, Грузовых лифтов: 4, Год постройки: 2003, улица Островитянова, 37.494836, 55.646426
Свяжитесь со мной на счет цены
10 дн.
T55S646426L37S494836T

На карте


Условия сделки

Источник


Старт продаж

Возможно заинтересует