Top.Mail.Ru

Поречная ул., д. 13, к. 1

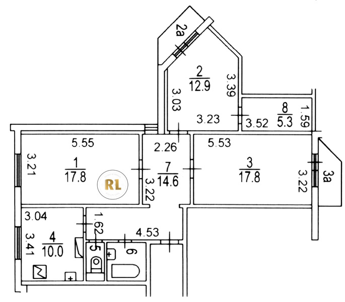
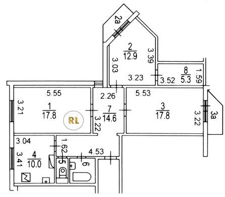
База каталог, Кол-во подъездов: 8, Имеется, П-3M, Москва, Марьино, Площадь парковки: 0, Пассажирский лифт: 8, От метро: 1160, Юго-Восточный, нет, Наименьшее кол-во этажей: 17, Наибольшее кол-во этажей: 17, Марьино, Кол-во помещений: 414, Кол-во нежилых помещений: 14, Год ввода в эксплуатацию: 1995, 3-комн, Кол-во жилых помещений: 400, Не присвоен, дом 13, корпус 1, нет, да, да, да, да, нет, Имеется, Грузовых лифтов: 8, Год постройки: 1995, Поречная улица, 37.758626, 55.646589
Свяжитесь со мной на счет цены
10 дн.
T55S646589L37S758626T

На карте


Условия сделки

Источник


Старт продаж

Возможно заинтересует