Top.Mail.Ru

Люблинская ул., д. 171

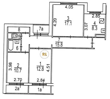
База каталог, Кол-во подъездов: 6, Отсутствует, П-55, Москва, Марьино, Площадь парковки: 0, Пассажирский лифт: 6, От метро: 310, Юго-Восточный, нет, Наименьшее кол-во этажей: 12, Наибольшее кол-во этажей: 14, Марьино, Кол-во помещений: 230, Кол-во нежилых помещений: 8, Год ввода в эксплуатацию: 1995, 3-комн, Кол-во жилых помещений: 222, Не присвоен, дом 171, да, да, да, да, да, да, Имеется, Грузовых лифтов: 6, Год постройки: 1995, Люблинская улица, 37.746912, 55.646914
Свяжитесь со мной на счет цены
10 дн.
T55S646914L37S746912T

На карте


Условия сделки

Источник


Старт продаж

Возможно заинтересует