Top.Mail.Ru

улица Авиаторов, д. 8

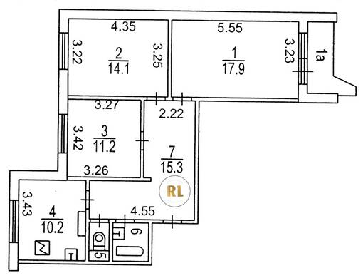
База каталог, Кол-во подъездов: 4, Имеется, П-44, Москва, Солнцево, Пассажирский лифт: 4, От метро: 480, Западный, да, Наименьшее кол-во этажей: 17, Наибольшее кол-во этажей: 17, Солнцево, Кол-во помещений: 273, Кол-во нежилых помещений: 1, Год ввода в эксплуатацию: 1987, 3-комн, Кол-во жилых помещений: 272, дом 8, да, да, да, да, да, да, Имеется, Грузовых лифтов: 4, Год постройки: 1987, улица Авиаторов, 37.396003, 55.647361
Свяжитесь со мной на счет цены
10 дн.
T55S647361L37S396003T

На карте


Условия сделки

Источник


Старт продаж

Возможно заинтересует