Top.Mail.Ru

Солнцевский проспект, д. 17/1

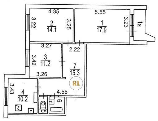
База каталог, Кол-во подъездов: 5, Имеется, П-44, Москва, Солнцево, Пассажирский лифт: 5, От метро: 1370, Западный, да, Наименьшее кол-во этажей: 17, Наибольшее кол-во этажей: 17, Солнцево, Кол-во помещений: 323, Кол-во нежилых помещений: 1, Год ввода в эксплуатацию: 1987, 3-комн, Кол-во жилых помещений: 322, дом 17/1, нет, да, да, да, да, нет, Имеется, Грузовых лифтов: 5, Год постройки: 1987, Солнцевский проспект, 37.409298, 55.647991
Свяжитесь со мной на счет цены
10 дн.
T55S647991L37S409298T

На карте


Условия сделки

Источник


Старт продаж

Возможно заинтересует