Top.Mail.Ru

улица Маршала Голованова, д. 16

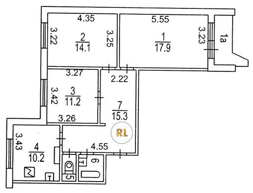
База каталог, Кол-во подъездов: 3, Имеется, П-44/16, Москва, Марьино, Пассажирский лифт: 3, От метро: 1330, Юго-Восточный, да, Наименьшее кол-во этажей: 16, Наибольшее кол-во этажей: 16, Марьино, Кол-во помещений: 191, Кол-во нежилых помещений: 0, Год ввода в эксплуатацию: 1980, 3-комн, Кол-во жилых помещений: 191, Не присвоен, дом 16, нет, да, да, да, да, нет, Имеется, Грузовых лифтов: 3, Год постройки: 1980, улица Маршала Голованова, 37.726322, 55.648001
Свяжитесь со мной на счет цены
10 дн.
T55S648001L37S726322T

На карте


Условия сделки

Источник


Старт продаж

Возможно заинтересует