Top.Mail.Ru

Солнцевский проспект, д. 13, к. 1

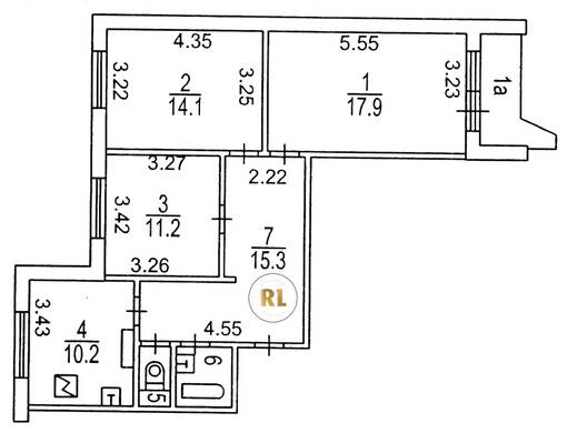
База каталог, Кол-во подъездов: 2, Имеется, П-44, Москва, Солнцево, Пассажирский лифт: 2, От метро: 1040, Западный, да, Наименьшее кол-во этажей: 17, Наибольшее кол-во этажей: 17, Солнцево, Кол-во помещений: 136, Кол-во нежилых помещений: 0, Год ввода в эксплуатацию: 1988, 3-комн, Кол-во жилых помещений: 136, дом 13, корпус 1, нет, да, да, да, да, да, Имеется, Грузовых лифтов: 2, Год постройки: 1988, Солнцевский проспект, 37.405390, 55.648235
Свяжитесь со мной на счет цены
10 дн.
T55S648235L37S405390T

На карте


Условия сделки

Источник


Старт продаж

Возможно заинтересует