Top.Mail.Ru

Новочеркасский бульвар, д. 53

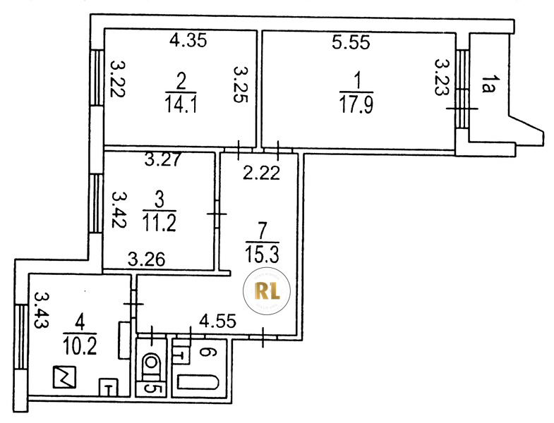
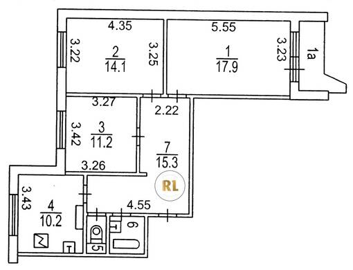
База каталог, Кол-во подъездов: 2, П-44, Москва, Марьино, Площадь парковки: 0, Пассажирский лифт: 2, От метро: 291, Юго-Восточный, нет, Наименьшее кол-во этажей: 17, Наибольшее кол-во этажей: 17, Марьино, Кол-во помещений: 132, Кол-во нежилых помещений: 4, Год ввода в эксплуатацию: 1991, 3-комн, Кол-во жилых помещений: 128, Не присвоен, дом 53, да, да, да, да, да, да, Имеется, Грузовых лифтов: 2, Год постройки: 1991, Новочеркасский бульвар, 37.740165, 55.648570
Свяжитесь со мной на счет цены
10 дн.
T55S648570L37S740165T

На карте


Условия сделки

Источник


Старт продаж

Возможно заинтересует