Top.Mail.Ru

Подольская ул., д. 31

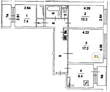
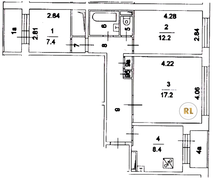
База каталог, Кол-во нежилых помещений: 0, П-30, Москва, Марьино, Пассажирский лифт: 6, От метро: 2370, Юго-Восточный, да, Наименьшее кол-во этажей: 12, Наибольшее кол-во этажей: 12, Марьино, Кол-во помещений: 142, Кол-во подъездов: 3, 3-комн, Год ввода в эксплуатацию: 1981, Кол-во жилых помещений: 142, Не присвоен, дом 31, нет, да, да, нет, нет, нет, Имеется, Грузовых лифтов: 0, Год постройки: 1981, Подольская улица, 37.709344, 55.648753
Свяжитесь со мной на счет цены
10 дн.
T55S648753L37S709344T

На карте


Условия сделки

Источник


Старт продаж

Возможно заинтересует