Top.Mail.Ru

Солнцевский проспект, д. 7

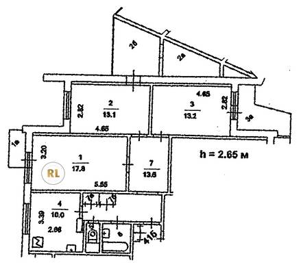
База каталог, Кол-во подъездов: 2, П-3-2/16, Москва, Солнцево, Пассажирский лифт: 2, От метро: 620, Западный, да, Наименьшее кол-во этажей: 16, Наибольшее кол-во этажей: 16, Солнцево, Кол-во помещений: 129, Кол-во нежилых помещений: 1, Год ввода в эксплуатацию: 1982, 3-комн, Кол-во жилых помещений: 128, дом 7, нет, да, да, да, да, да, Грузовых лифтов: 2, Год постройки: 1982, Солнцевский проспект, 37.400297, 55.648890
Свяжитесь со мной на счет цены
10 дн.
T55S648890L37S400297T

На карте


Условия сделки

Источник


Старт продаж

Возможно заинтересует