Top.Mail.Ru

улица Маршала Голованова, д. 7

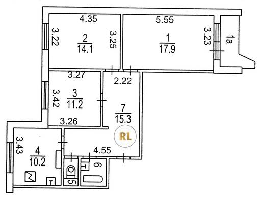
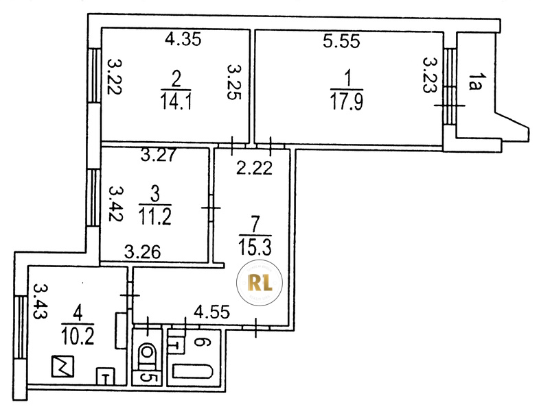
База каталог, Кол-во подъездов: 3, Отсутствует, П-44, Москва, Марьино, Площадь парковки: 0, Пассажирский лифт: 3, От метро: 890, Юго-Восточный, нет, Наименьшее кол-во этажей: 17, Наибольшее кол-во этажей: 17, Марьино, Кол-во помещений: 207, Кол-во нежилых помещений: 4, Год ввода в эксплуатацию: 1985, 3-комн, Кол-во жилых помещений: 203, Не присвоен, дом 7, нет, да, да, да, да, да, Имеется, Грузовых лифтов: 3, Год постройки: 1985, улица Маршала Голованова, 37.731101, 55.649591
Свяжитесь со мной на счет цены
10 дн.
T55S649591L37S731101T

На карте


Условия сделки

Источник


Старт продаж

Возможно заинтересует