Top.Mail.Ru

Мячковский бульвар, д. 18, к. 1

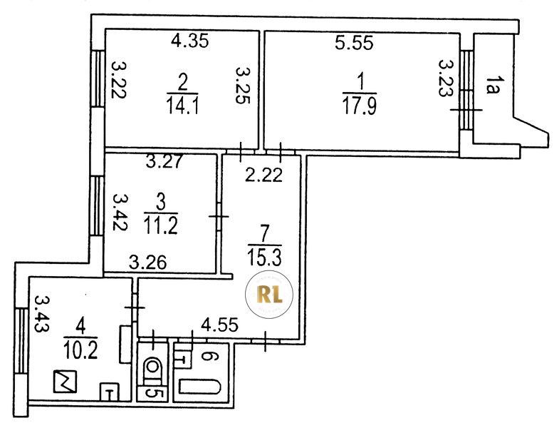
База каталог, Кол-во подъездов: 9, Имеется, П-44, Москва, Марьино, Площадь парковки: 0, Пассажирский лифт: 15, От метро: 1030, Юго-Восточный, нет, Наименьшее кол-во этажей: 10, Наибольшее кол-во этажей: 14, Марьино, Кол-во помещений: 437, Кол-во нежилых помещений: 13, Год ввода в эксплуатацию: 1995, 3-комн, Кол-во жилых помещений: 424, Не присвоен, дом 18, корпус 1, нет, да, да, да, да, да, Имеется, Грузовых лифтов: 3, Год постройки: 1995, Мячковский бульвар, 37.758814, 55.649916
Свяжитесь со мной на счет цены
10 дн.
T55S649916L37S758814T

На карте


Условия сделки

Источник


Старт продаж

Возможно заинтересует