Top.Mail.Ru

Севастопольский проспект, д. 83, к. 2

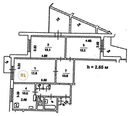
База каталог, Кол-во подъездов: 2, П-3/16, Москва, Зюзино, Площадь парковки: 0, Пассажирский лифт: 2, От метро: 870, Юго-Западный, нет, Наименьшее кол-во этажей: 17, Наибольшее кол-во этажей: 17, Зюзино, Кол-во помещений: 129, Кол-во нежилых помещений: 1, Год ввода в эксплуатацию: 1974, 3-комн, Кол-во жилых помещений: 128, Не присвоен, дом 83, корпус 2, нет, да, да, да, да, да, Грузовых лифтов: 2, Год постройки: 1974, Севастопольский проспект, 37.565874, 55.650267
Свяжитесь со мной на счет цены
10 дн.
T55S650267L37S565874T

На карте


Условия сделки

Источник


Старт продаж

Возможно заинтересует