Top.Mail.Ru

Ялтинская ул., д. 6

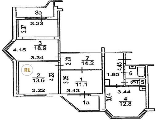
База каталог, Кол-во подъездов: 4, Имеется, П-44T, Москва, Нагорный, Площадь парковки: 320, Пассажирский лифт: 4, От метро: 830, Южный, да, Наименьшее кол-во этажей: 14, Наибольшее кол-во этажей: 14, Варшавская, Кол-во помещений: 223, Кол-во нежилых помещений: 1, Год ввода в эксплуатацию: 2001, 3-комн, Кол-во жилых помещений: 222, Не присвоен, дом 6, нет, да, да, да, да, да, Имеется, Грузовых лифтов: 0, Год постройки: 2001, Ялтинская улица, 37.609595, 55.650282
Свяжитесь со мной на счет цены
10 дн.
T55S650282L37S609595T

На карте


Условия сделки

Источник


Старт продаж

Возможно заинтересует