Top.Mail.Ru

улица 50 лет Октября, д. 9, к. 2

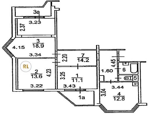
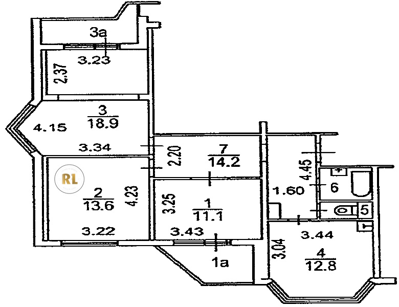
База каталог, Кол-во подъездов: 1, Имеется, П-44T, Москва, Солнцево, Пассажирский лифт: 1, От метро: 1460, Западный, да, Наименьшее кол-во этажей: 17, Наибольшее кол-во этажей: 17, Говорово, Кол-во помещений: 65, Кол-во нежилых помещений: 1, Год ввода в эксплуатацию: 2006, 3-комн, Кол-во жилых помещений: 64, дом 9, корпус 2, нет, да, да, да, да, нет, Имеется, Грузовых лифтов: 1, Год постройки: 2006, улица 50 лет Октября, 37.411211, 55.650287
Свяжитесь со мной на счет цены
10 дн.
T55S650287L37S411211T

На карте


Условия сделки

Источник


Старт продаж

Возможно заинтересует