Top.Mail.Ru

Луговой проезд, д. 4, к. 3

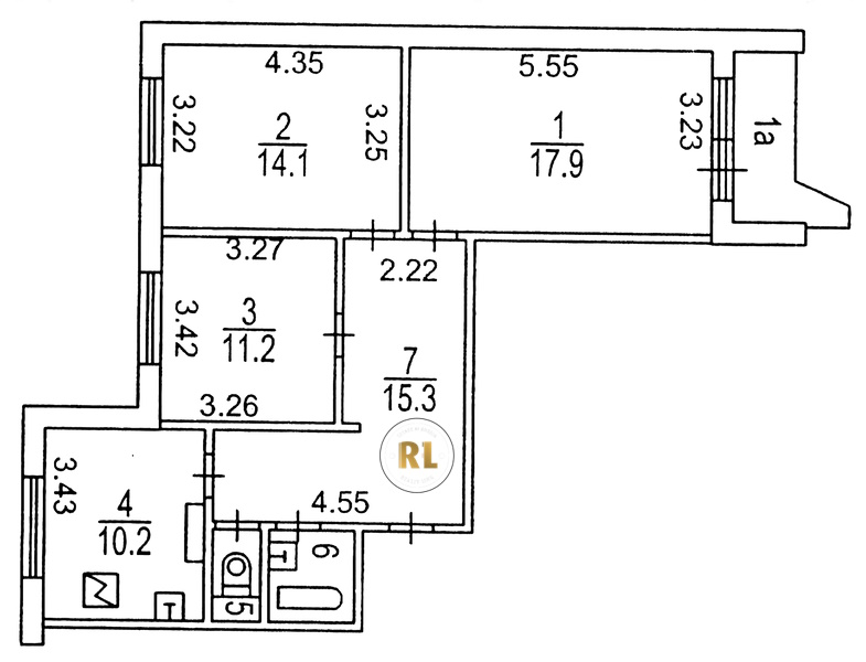
База каталог, Кол-во подъездов: 2, П-44, Москва, Марьино, Площадь парковки: 0, Пассажирский лифт: 2, От метро: 530, Юго-Восточный, нет, Наименьшее кол-во этажей: 10, Наибольшее кол-во этажей: 10, Марьино, Кол-во помещений: 82, Кол-во нежилых помещений: 3, Год ввода в эксплуатацию: 1994, 3-комн, Кол-во жилых помещений: 79, Не присвоен, дом 4, корпус 3, да, да, да, да, да, да, Грузовых лифтов: 2, Год постройки: 1994, Луговой проезд, 37.749310, 55.650312
Свяжитесь со мной на счет цены
10 дн.
T55S650312L37S749310T

На карте


Условия сделки

Источник


Старт продаж

Возможно заинтересует