Top.Mail.Ru

Симферопольский бульвар, д. 18, к. 2

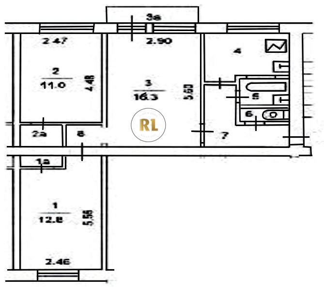
База каталог, Кол-во подъездов: 4, I-511, Москва, Зюзино, Площадь парковки: 0, Пассажирский лифт: 0, От метро: 400, Юго-Западный, нет, Наименьшее кол-во этажей: 5, Наибольшее кол-во этажей: 5, Севастопольская, Кол-во помещений: 81, Кол-во нежилых помещений: 1, Год ввода в эксплуатацию: 1963, 3-комн, Кол-во жилых помещений: 80, Не присвоен, дом 18, корпус 2, да, да, да, да, да, да, Грузовых лифтов: 0, Год постройки: 1963, Симферопольский бульвар, 37.604169, 55.650317
Свяжитесь со мной на счет цены
10 дн.
T55S650317L37S604169T

На карте


Условия сделки

Источник


Старт продаж

Возможно заинтересует