Top.Mail.Ru

улица Маршала Голованова, д. 4

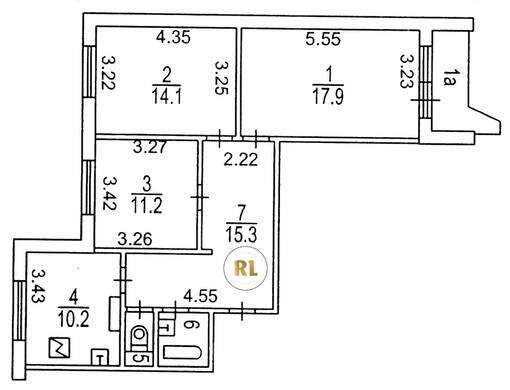
База каталог, Кол-во подъездов: 3, Имеется, П-44/16, Москва, Марьино, Пассажирский лифт: 3, От метро: 1460, Юго-Восточный, да, Наименьшее кол-во этажей: 16, Наибольшее кол-во этажей: 16, Марьино, Кол-во помещений: 192, Кол-во нежилых помещений: 1, Год ввода в эксплуатацию: 1980, 3-комн, Кол-во жилых помещений: 191, Не присвоен, дом 4, нет, да, да, да, да, нет, Имеется, Грузовых лифтов: 3, Год постройки: 1980, улица Маршала Голованова, 37.725235, 55.650394
Свяжитесь со мной на счет цены
10 дн.
T55S650394L37S725235T

На карте


Условия сделки

Источник


Старт продаж

Возможно заинтересует