Top.Mail.Ru

улица Перерва, д. 34

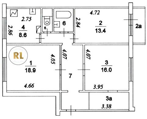
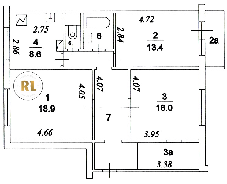
База каталог, Кол-во подъездов: 9, Имеется, П-46, Москва, Марьино, Площадь парковки: 0, Пассажирский лифт: 18, От метро: 640, Юго-Восточный, нет, Наименьшее кол-во этажей: 14, Наибольшее кол-во этажей: 14, Марьино, Кол-во помещений: 479, Кол-во нежилых помещений: 12, Год ввода в эксплуатацию: 1988, 3-комн, Кол-во жилых помещений: 467, Не присвоен, дом 34, нет, да, да, да, да, да, Имеется, Грузовых лифтов: 0, Год постройки: 1988, улица Перерва, 37.734308, 55.650622
Свяжитесь со мной на счет цены
10 дн.
T55S650622L37S734308T

На карте


Условия сделки

Источник


Старт продаж

Возможно заинтересует