Top.Mail.Ru

Симферопольский бульвар, д. 18, к. 1

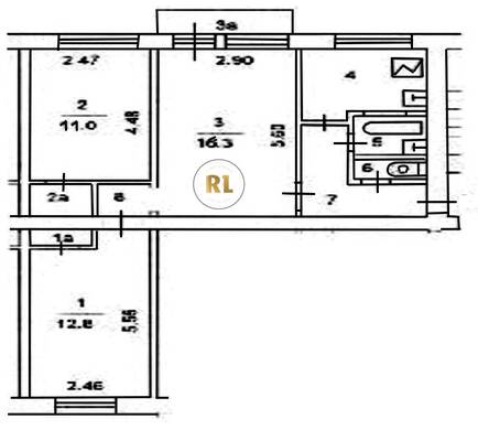
База каталог, Кол-во подъездов: 4, I-511, Москва, Зюзино, Площадь парковки: 0, Пассажирский лифт: 0, От метро: 440, Юго-Западный, нет, Наименьшее кол-во этажей: 5, Наибольшее кол-во этажей: 5, Каховская, Кол-во помещений: 80, Кол-во нежилых помещений: 0, Год ввода в эксплуатацию: 1965, 3-комн, Кол-во жилых помещений: 80, Не присвоен, дом 18, корпус 1, да, да, да, да, да, да, Грузовых лифтов: 0, Год постройки: 1965, Симферопольский бульвар, 37.604178, 55.650678
Свяжитесь со мной на счет цены
10 дн.
T55S650678L37S604178T

На карте


Условия сделки

Источник


Старт продаж

Возможно заинтересует