Top.Mail.Ru

улица Маршала Голованова, д. 2

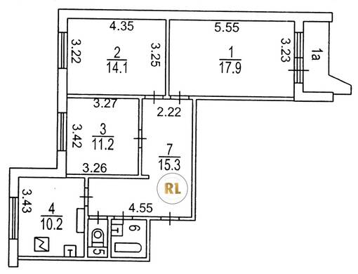
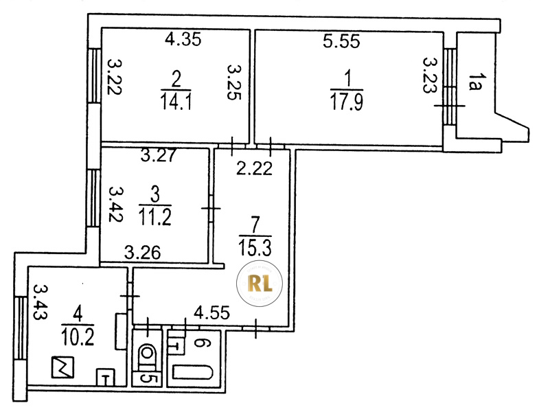
База каталог, Кол-во подъездов: 3, Имеется, П-44/16, Москва, Марьино, Пассажирский лифт: 3, От метро: 1350, Юго-Восточный, да, Наименьшее кол-во этажей: 16, Наибольшее кол-во этажей: 16, Марьино, Кол-во помещений: 197, Кол-во нежилых помещений: 6, Год ввода в эксплуатацию: 1981, 3-комн, Кол-во жилых помещений: 191, Не присвоен, дом 2, нет, да, да, да, да, нет, Имеется, Грузовых лифтов: 3, Год постройки: 1981, улица Маршала Голованова, 37.726197, 55.650846
Свяжитесь со мной на счет цены
10 дн.
T55S650846L37S726197T

На карте


Условия сделки

Источник


Старт продаж

Возможно заинтересует