Top.Mail.Ru

1-я Курьяновская ул., д. 53

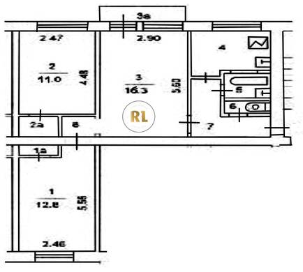
База каталог, Кол-во подъездов: 3, Отсутствует, I-511, Москва, Печатники, Площадь парковки: 0, Пассажирский лифт: 0, От метро: 3600, Юго-Восточный, нет, Наименьшее кол-во этажей: 4, Наибольшее кол-во этажей: 4, Марьино, Кол-во помещений: 46, Кол-во нежилых помещений: 1, Год ввода в эксплуатацию: 1962, 3-комн, Кол-во жилых помещений: 45, E, дом 53, нет, нет, нет, нет, нет, нет, Отсутствует, Грузовых лифтов: 0, Год постройки: 1962, 1-я Курьяновская улица, 37.700711, 55.651130
Свяжитесь со мной на счет цены
10 дн.
T55S651130L37S700711T

На карте


Условия сделки

Источник


Старт продаж

Возможно заинтересует