Top.Mail.Ru

Луговой проезд, д. 1/8

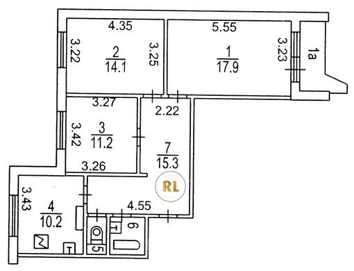
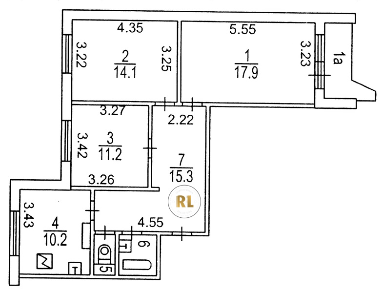
База каталог, Кол-во подъездов: 9, Имеется, П-44, Москва, Марьино, Площадь парковки: 0, Пассажирский лифт: 18, От метро: 660, Юго-Восточный, нет, Наименьшее кол-во этажей: 12, Наибольшее кол-во этажей: 12, Марьино, Кол-во помещений: 435, Кол-во нежилых помещений: 11, Год ввода в эксплуатацию: 1995, 3-комн, Кол-во жилых помещений: 424, Не присвоен, дом 1/8, нет, да, да, да, да, да, Имеется, Грузовых лифтов: 0, Год постройки: 1995, Луговой проезд, 37.751951, 55.651237
Свяжитесь со мной на счет цены
10 дн.
T55S651237L37S751951T

На карте


Условия сделки

Источник


Старт продаж

Возможно заинтересует