Top.Mail.Ru

Лукинская ул., д. 4

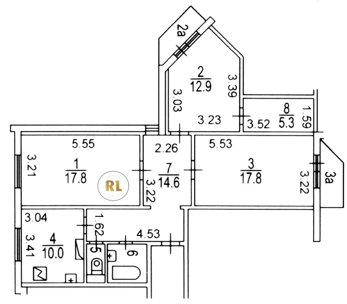
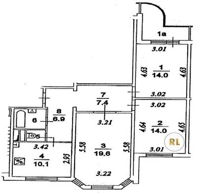
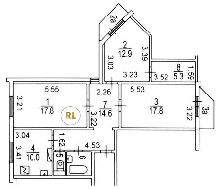
База каталог, Кол-во подъездов: 2, П-3M, Москва, Ново-Переделкино, Площадь парковки: 0, Пассажирский лифт: 2, От метро: 1870, Западный, нет, Наименьшее кол-во этажей: 15, Наибольшее кол-во этажей: 15, Новопеределкино, Кол-во помещений: 116, Кол-во нежилых помещений: 4, Год ввода в эксплуатацию: 2009, 3-комн, Кол-во жилых помещений: 112, Не присвоен, дом 4, нет, да, да, да, нет, нет, Имеется, Грузовых лифтов: 2, Год постройки: 2009, Лукинская улица, 37.343353, 55.651679
Свяжитесь со мной на счет цены
10 дн.
T55S651679L37S343353T

На карте


Условия сделки

Источник


Старт продаж

Возможно заинтересует