Top.Mail.Ru

Марьинский бульвар, д. 10

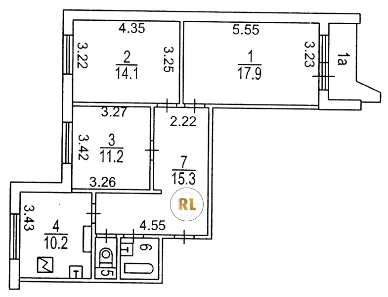
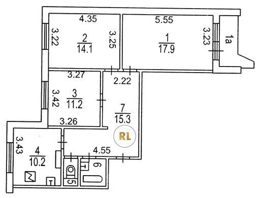
База каталог, Кол-во подъездов: 7, Отсутствует, П-44, Москва, Марьино, Площадь парковки: 0, Пассажирский лифт: 7, От метро: 1410, Юго-Восточный, нет, Наименьшее кол-во этажей: 10, Наибольшее кол-во этажей: 17, Братиславская, Кол-во помещений: 380, Кол-во нежилых помещений: 8, Год ввода в эксплуатацию: 1995, 3-комн, Кол-во жилых помещений: 372, В, дом 10, нет, да, да, да, да, нет, Имеется, Грузовых лифтов: 7, Год постройки: 1995, Марьинский бульвар, 37.763926, 55.651796
Свяжитесь со мной на счет цены
10 дн.
T55S651796L37S763926T

На карте


Условия сделки

Источник


Старт продаж

Возможно заинтересует