Top.Mail.Ru

улица Главмосстроя, д. 6

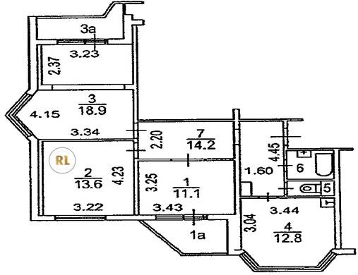
База каталог, Кол-во подъездов: 4, П-44T, Москва, Солнцево, Пассажирский лифт: 4, От метро: 1370, Западный, да, Наименьшее кол-во этажей: 14, Наибольшее кол-во этажей: 25, Говорово, Кол-во помещений: 309, Кол-во нежилых помещений: 1, Год ввода в эксплуатацию: 2007, 3-комн, Кол-во жилых помещений: 308, дом 6, нет, да, да, да, да, нет, Грузовых лифтов: 6, Год постройки: 2007, улица Главмосстроя, 37.410484, 55.651816
Свяжитесь со мной на счет цены
10 дн.
T55S651816L37S410484T

На карте


Условия сделки

Источник


Старт продаж

Возможно заинтересует