Top.Mail.Ru

Поречная ул., д. 31, к. 1

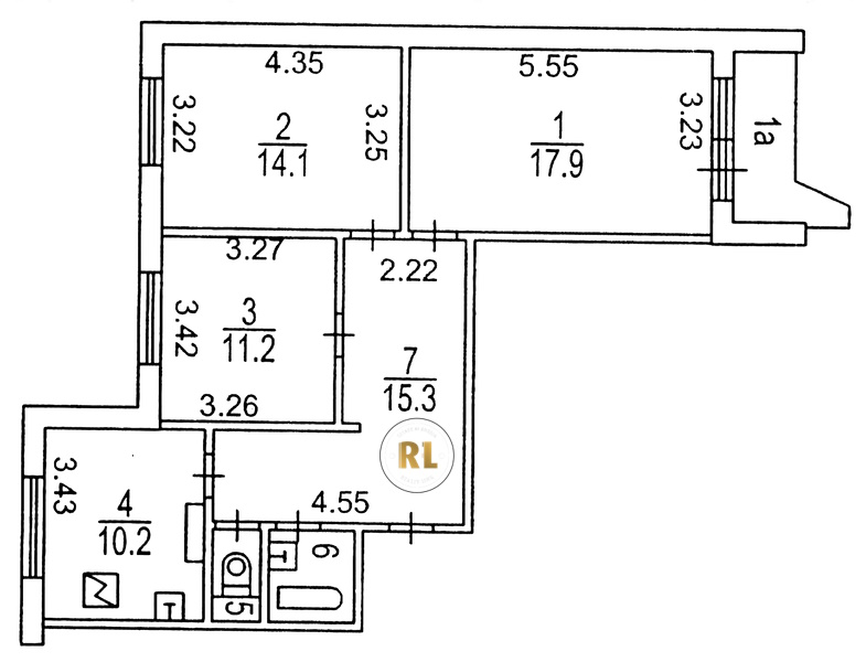
База каталог, Кол-во подъездов: 7, Имеется, П-44, Москва, Марьино, Пассажирский лифт: 7, От метро: 1820, Юго-Восточный, да, Наименьшее кол-во этажей: 17, Наибольшее кол-во этажей: 17, Братиславская, Кол-во помещений: 466, Кол-во нежилых помещений: 14, Год ввода в эксплуатацию: 1999, 3-комн, Кол-во жилых помещений: 452, Не присвоен, дом 31, корпус 1, нет, да, да, да, нет, нет, Имеется, Грузовых лифтов: 7, Год постройки: 1999, Поречная улица, 37.773376, 55.652344
Свяжитесь со мной на счет цены
10 дн.
T55S652344L37S773376T

На карте


Условия сделки

Источник


Старт продаж

Возможно заинтересует