Top.Mail.Ru

Люблинская ул., д. 161

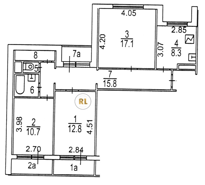
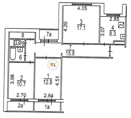
База каталог, Кол-во подъездов: 6, П-55, Москва, Марьино, Площадь парковки: 0, Пассажирский лифт: 6, От метро: 187, Юго-Восточный, нет, Наименьшее кол-во этажей: 14, Наибольшее кол-во этажей: 14, Марьино, Кол-во помещений: 265, Кол-во нежилых помещений: 5, Год ввода в эксплуатацию: 1995, 3-комн, Кол-во жилых помещений: 260, В, дом 161, да, да, да, да, да, да, Имеется, Грузовых лифтов: 6, Год постройки: 1995, Люблинская улица, 37.743965, 55.652420
Свяжитесь со мной на счет цены
10 дн.
T55S652420L37S743965T

На карте


Условия сделки

Источник


Старт продаж

Возможно заинтересует