Top.Mail.Ru

улица Обручева, д. 35, к. 3

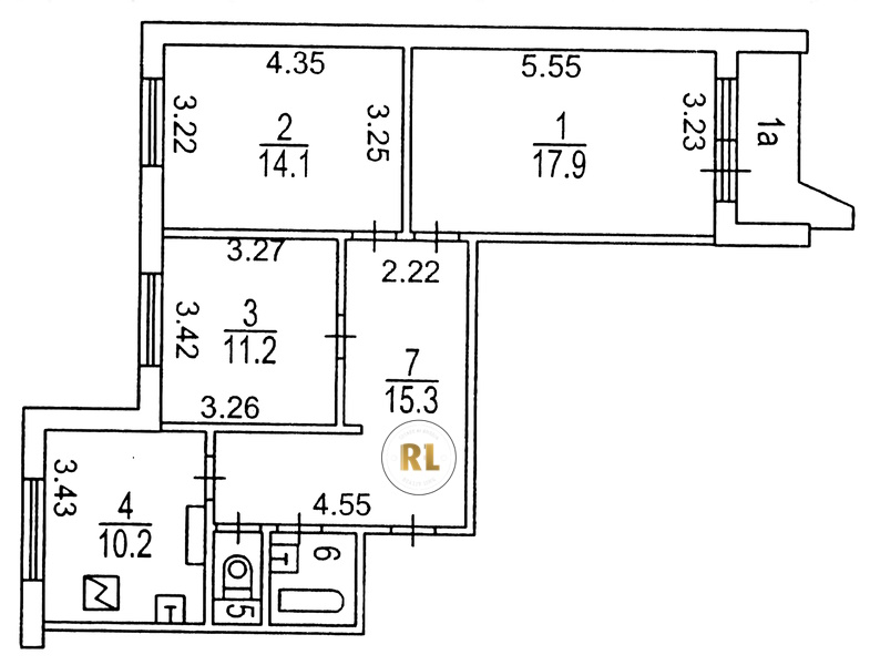
База каталог, Кол-во подъездов: 3, П-44, Москва, Черемушки, Площадь парковки: 0, Пассажирский лифт: 3, От метро: 1260, Юго-Западный, нет, Наименьшее кол-во этажей: 17, Наибольшее кол-во этажей: 17, Калужская, Кол-во помещений: 203, Кол-во нежилых помещений: 0, Год ввода в эксплуатацию: 1991, 3-комн, Кол-во жилых помещений: 203, Не присвоен, дом 35, корпус 3, нет, да, да, да, да, нет, Грузовых лифтов: 3, Год постройки: 1991, улица Обручева, 37.554726, 55.652578
Свяжитесь со мной на счет цены
10 дн.
T55S652578L37S554726T

На карте


Условия сделки

Источник


Старт продаж

Возможно заинтересует