Top.Mail.Ru

Чонгарский бульвар, д. 15

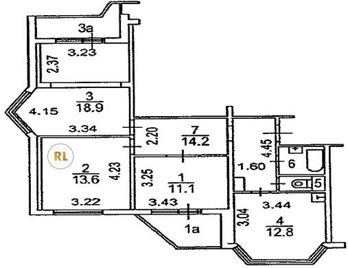
База каталог, Кол-во подъездов: 5, П-44T, Москва, Нагорный, Площадь парковки: 0, Пассажирский лифт: 5, От метро: 490, Южный, нет, Наименьшее кол-во этажей: 17, Наибольшее кол-во этажей: 17, Каховская, Кол-во помещений: 326, Кол-во нежилых помещений: 6, Год ввода в эксплуатацию: 2004, 3-комн, Кол-во жилых помещений: 320, дом 15, да, да, да, да, да, да, Имеется, Грузовых лифтов: 5, Год постройки: 2004, Чонгарский бульвар, 37.607817, 55.652756
Свяжитесь со мной на счет цены
10 дн.
T55S652756L37S607817T

На карте


Условия сделки

Источник


Старт продаж

Возможно заинтересует