Top.Mail.Ru

Чонгарский бульвар, д. 11

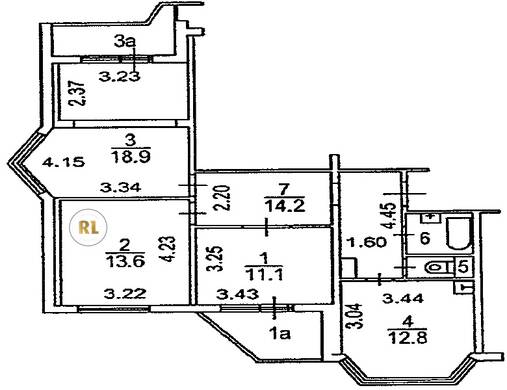
База каталог, Кол-во подъездов: 3, Имеется, П-44T, Москва, Нагорный, Площадь парковки: 160, Пассажирский лифт: 3, От метро: 620, Южный, да, Наименьшее кол-во этажей: 17, Наибольшее кол-во этажей: 17, Каховская, Кол-во помещений: 134, Кол-во нежилых помещений: 5, Год ввода в эксплуатацию: 2003, 3-комн, Кол-во жилых помещений: 129, Не присвоен, дом 11, нет, да, да, да, да, да, Имеется, Грузовых лифтов: 3, Год постройки: 2003, Чонгарский бульвар, 37.609416, 55.652756
Свяжитесь со мной на счет цены
10 дн.
T55S652756L37S609416T

На карте


Условия сделки

Источник


Старт продаж

Возможно заинтересует