Top.Mail.Ru

Марьинский бульвар, д. 11

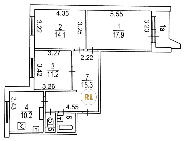
База каталог, Кол-во подъездов: 7, Имеется, П-44, Москва, Марьино, Площадь парковки: 0, Пассажирский лифт: 7, От метро: 1270, Юго-Восточный, нет, Наименьшее кол-во этажей: 10, Наибольшее кол-во этажей: 17, Братиславская, Кол-во помещений: 382, Кол-во нежилых помещений: 15, Год ввода в эксплуатацию: 1995, 3-комн, Кол-во жилых помещений: 367, Не присвоен, дом 11, нет, да, да, да, да, нет, Имеется, Грузовых лифтов: 7, Год постройки: 1995, Марьинский бульвар, 37.762749, 55.652827
Свяжитесь со мной на счет цены
10 дн.
T55S652827L37S762749T

На карте


Условия сделки

Источник


Старт продаж

Возможно заинтересует