Top.Mail.Ru

улица Главмосстроя, д. 5

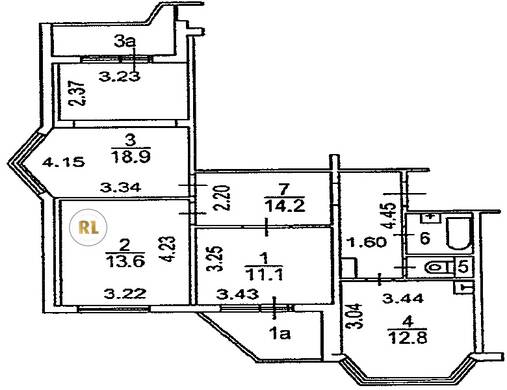
База каталог, Кол-во нежилых помещений: 16, П-44T, Москва, Солнцево, Пассажирский лифт: 11, От метро: 1300, Западный, да, Наименьшее кол-во этажей: 14, Наибольшее кол-во этажей: 23, Говорово, Кол-во помещений: 735, Кол-во подъездов: 11, 3-комн, Год ввода в эксплуатацию: 2016, Кол-во жилых помещений: 719, В++, дом 5, нет, да, да, да, да, нет, Имеется, Грузовых лифтов: 13, Год постройки: 2016, улица Главмосстроя, 37.406989, 55.652832
Свяжитесь со мной на счет цены
10 дн.
T55S652832L37S406989T

На карте


Условия сделки

Источник


Старт продаж

Возможно заинтересует