Top.Mail.Ru

улица Перерва, д. 38

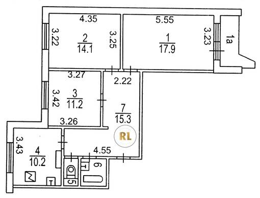
База каталог, Кол-во подъездов: 2, П-44-1/17, Москва, Марьино, Площадь парковки: 0, Пассажирский лифт: 2, От метро: 730, Юго-Восточный, нет, Наименьшее кол-во этажей: 17, Наибольшее кол-во этажей: 17, Марьино, Кол-во помещений: 131, Кол-во нежилых помещений: 3, Год ввода в эксплуатацию: 1991, 3-комн, Кол-во жилых помещений: 128, Не присвоен, дом 38, нет, да, да, да, да, да, Имеется, Грузовых лифтов: 2, Год постройки: 1991, улица Перерва, 37.735135, 55.653004
Свяжитесь со мной на счет цены
10 дн.
T55S653004L37S735135T

На карте


Условия сделки

Источник


Старт продаж

Возможно заинтересует