Top.Mail.Ru

улица 50 лет Октября, д. 2, к. 3

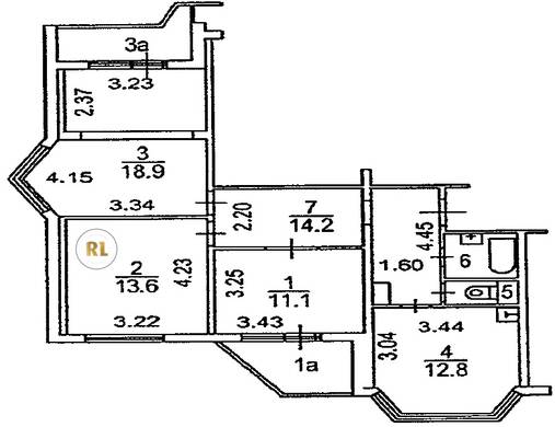
База каталог, Кол-во подъездов: 1, Отсутствует, П-44T, Москва, Солнцево, Пассажирский лифт: 1, От метро: 990, Западный, да, Наименьшее кол-во этажей: 17, Наибольшее кол-во этажей: 17, Говорово, Кол-во помещений: 65, Кол-во нежилых помещений: 1, Год ввода в эксплуатацию: 2005, 3-комн, Кол-во жилых помещений: 64, дом 2, корпус 3, нет, да, да, да, да, да, Отсутствует, Грузовых лифтов: 1, Год постройки: 2005, улица 50 лет Октября, 37.416538, 55.653086
Свяжитесь со мной на счет цены
10 дн.
T55S653086L37S416538T

На карте


Условия сделки

Источник


Старт продаж

Возможно заинтересует