Top.Mail.Ru

улица Перерва, д. 10

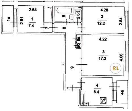
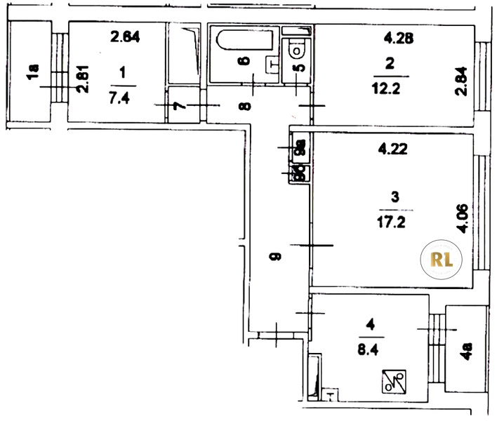
База каталог, Кол-во подъездов: 5, П-30, Москва, Марьино, Площадь парковки: 0, Пассажирский лифт: 5, От метро: 1960, Юго-Восточный, нет, Наименьшее кол-во этажей: 12, Наибольшее кол-во этажей: 12, Марьино, Кол-во помещений: 219, Кол-во нежилых помещений: 7, Год ввода в эксплуатацию: 1980, 3-комн, Кол-во жилых помещений: 212, Не присвоен, дом 10, нет, да, да, да, нет, нет, Имеется, Грузовых лифтов: 5, Год постройки: 1980, улица Перерва, 37.717815, 55.653431
Свяжитесь со мной на счет цены
10 дн.
T55S653431L37S717815T

На карте


Условия сделки

Источник


Старт продаж

Возможно заинтересует