Top.Mail.Ru

улица Перерва, д. 40

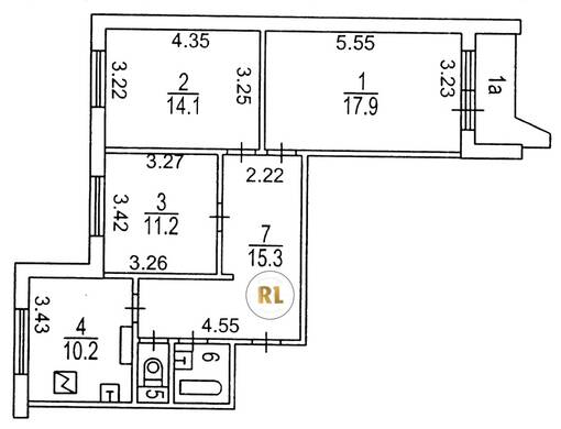
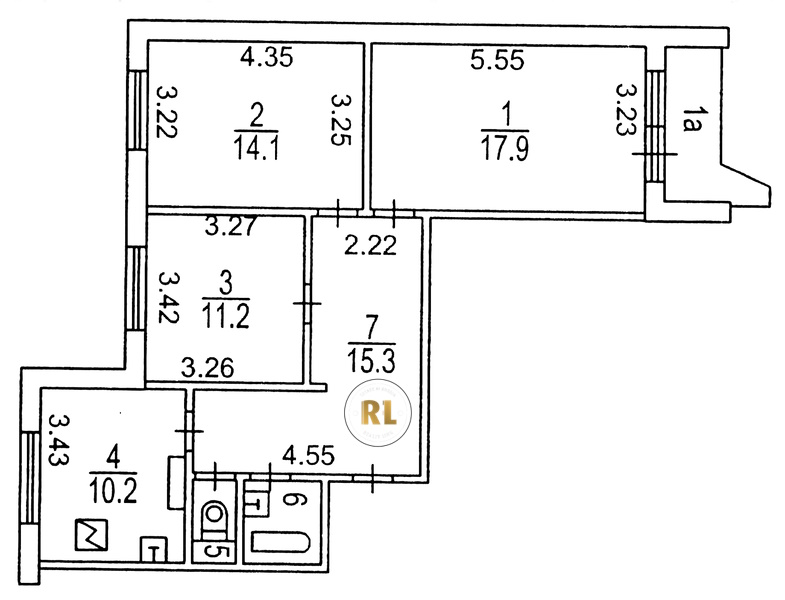
База каталог, Кол-во подъездов: 5, Имеется, П-44-1/17, Москва, Марьино, Площадь парковки: 0, Пассажирский лифт: 5, От метро: 690, Юго-Восточный, нет, Наименьшее кол-во этажей: 17, Наибольшее кол-во этажей: 17, Марьино, Кол-во помещений: 332, Кол-во нежилых помещений: 4, Год ввода в эксплуатацию: 1990, 3-комн, Кол-во жилых помещений: 328, Не присвоен, дом 40, нет, да, да, да, да, да, Имеется, Грузовых лифтов: 5, Год постройки: 1990, улица Перерва, 37.736366, 55.653462
Свяжитесь со мной на счет цены
10 дн.
T55S653462L37S736366T

На карте


Условия сделки

Источник


Старт продаж

Возможно заинтересует