Top.Mail.Ru

Чонгарский бульвар, д. 18, к. 1

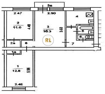
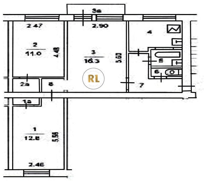
База каталог, Кол-во подъездов: 4, Имеется, I-511, Москва, Нагорный, Пассажирский лифт: 0, От метро: 590, Южный, да, Наименьшее кол-во этажей: 5, Наибольшее кол-во этажей: 5, Каховская, Кол-во помещений: 80, Кол-во нежилых помещений: 0, Год ввода в эксплуатацию: 1964, 3-комн, Кол-во жилых помещений: 80, дом 18, корпус 1, да, да, да, да, да, да, Имеется, Грузовых лифтов: 0, Год постройки: 1964, Чонгарский бульвар, 37.608949, 55.653893
Свяжитесь со мной на счет цены
10 дн.
T55S653893L37S608949T

На карте


Условия сделки

Источник


Старт продаж

Возможно заинтересует