Top.Mail.Ru

улица Главмосстроя, д. 12

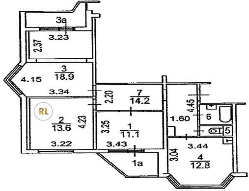
База каталог, Кол-во подъездов: 4, П-44T, Москва, Солнцево, Пассажирский лифт: 8, От метро: 1160, Западный, да, Наименьшее кол-во этажей: 14, Наибольшее кол-во этажей: 17, Говорово, Кол-во помещений: 235, Кол-во нежилых помещений: 1, Год ввода в эксплуатацию: 2009, 3-комн, Кол-во жилых помещений: 234, дом 12, нет, да, да, да, да, нет, Грузовых лифтов: 8, Год постройки: 2009, улица Главмосстроя, 37.408606, 55.653939
Свяжитесь со мной на счет цены
10 дн.
T55S653939L37S408606T

На карте


Условия сделки

Источник


Старт продаж

Возможно заинтересует