Top.Mail.Ru

Братиславская ул., д. 26

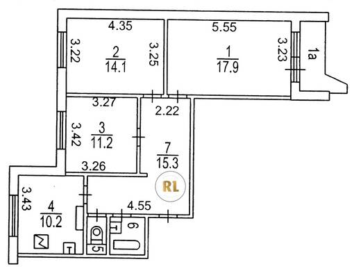
База каталог, Кол-во подъездов: 8, П-44, Москва, Марьино, Площадь парковки: 0, Пассажирский лифт: 8, От метро: 1160, Юго-Восточный, нет, Наименьшее кол-во этажей: 18, Наибольшее кол-во этажей: 18, Братиславская, Кол-во помещений: 565, Кол-во нежилых помещений: 53, Год ввода в эксплуатацию: 1997, 3-комн, Кол-во жилых помещений: 512, Не присвоен, дом 26, нет, да, да, да, да, нет, Имеется, Грузовых лифтов: 8, Год постройки: 1997, Братиславская улица, 37.763728, 55.654310
Свяжитесь со мной на счет цены
10 дн.
T55S654310L37S763728T

На карте


Условия сделки

Источник


Старт продаж

Возможно заинтересует