Top.Mail.Ru

Одесская ул., д. 22, к. 3

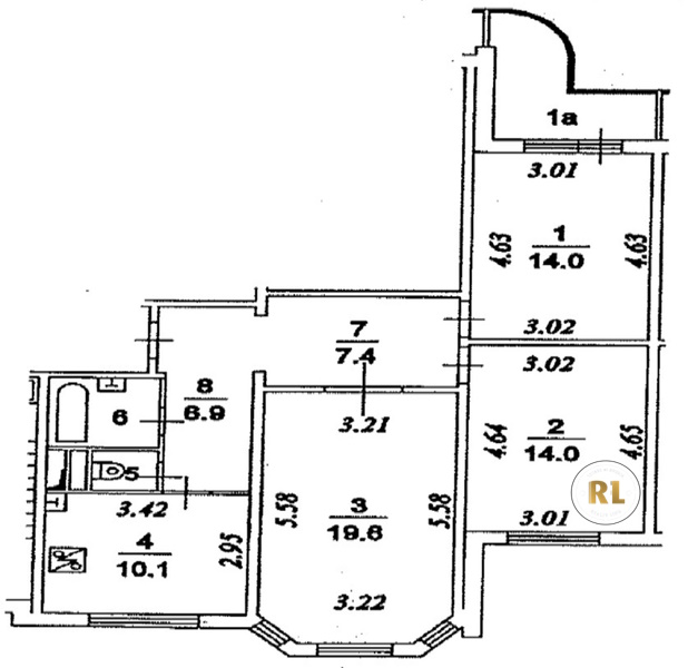
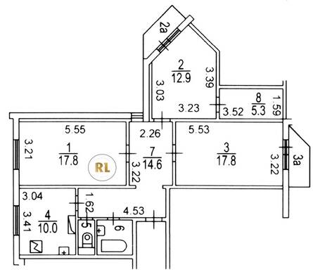
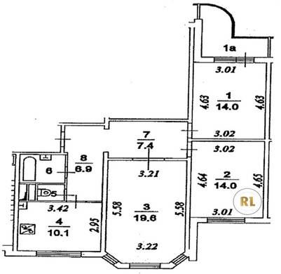
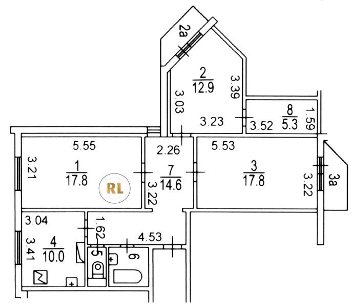
База каталог, Кол-во подъездов: 3, П-3M, Москва, Зюзино, Площадь парковки: 0, Пассажирский лифт: 3, От метро: 880, Юго-Западный, нет, Наименьшее кол-во этажей: 16, Наибольшее кол-во этажей: 16, Каховская, Кол-во помещений: 192, Кол-во нежилых помещений: 0, Год ввода в эксплуатацию: 1998, 3-комн, Кол-во жилых помещений: 192, Не присвоен, дом 22, корпус 3, нет, да, да, да, да, да, Имеется, Грузовых лифтов: 3, Год постройки: 1998, Одесская улица, 37.586356, 55.654335
Свяжитесь со мной на счет цены
10 дн.
T55S654335L37S586356T

На карте


Условия сделки

Источник


Старт продаж

Возможно заинтересует