Top.Mail.Ru

проспект Вернадского, д. 125, к. 1

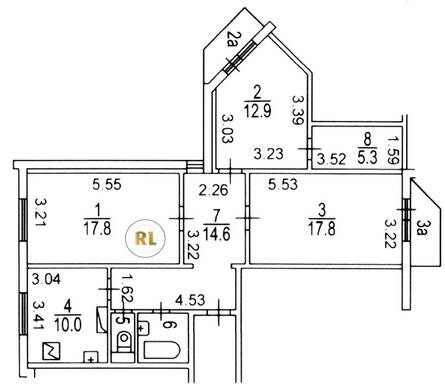
База каталог, Кол-во подъездов: 3, П-3M, Москва, Тропарево-Никулино, Площадь парковки: 0, Пассажирский лифт: 3, От метро: 1030, Западный, нет, Наименьшее кол-во этажей: 1, Наибольшее кол-во этажей: 17, Юго-Западная, Кол-во помещений: 192, Кол-во нежилых помещений: 3, Год ввода в эксплуатацию: 2002, 3-комн, Кол-во жилых помещений: 189, Не присвоен, дом 125, корпус 1, нет, да, да, да, да, да, Грузовых лифтов: 3, Год постройки: 2002, проспект Вернадского, 37.483202, 55.654741
Свяжитесь со мной на счет цены
10 дн.
T55S654741L37S483202T

На карте


Условия сделки

Источник


Старт продаж

Возможно заинтересует