Top.Mail.Ru

Чонгарский бульвар, д. 14, к. 4

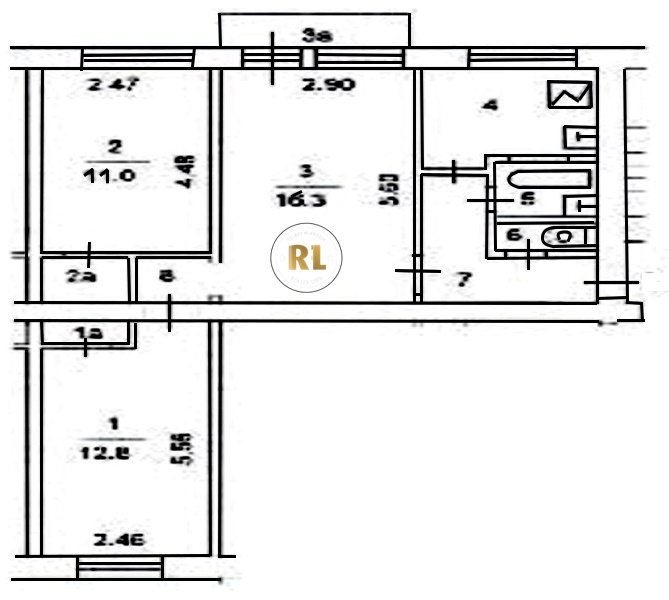
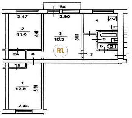
База каталог, Кол-во помещений: 80, Имеется, I-511, Москва, Нагорный, Площадь парковки: 740, Пассажирский лифт: 0, От метро: 540, Южный, да, Наименьшее кол-во этажей: 5, Наибольшее кол-во этажей: 5, Варшавская, Кол-во подъездов: 4, Год ввода в эксплуатацию: 1965, Кол-во нежилых помещений: 0, 3-комн, Кол-во жилых помещений: 80, дом 14, корпус 4, да, да, да, да, да, да, Имеется, Грузовых лифтов: 0, Год постройки: 1965, Чонгарский бульвар, 37.612380, 55.654777
Свяжитесь со мной на счет цены
10 дн.
T55S654777L37S612380T

На карте


Условия сделки

Источник


Старт продаж

Возможно заинтересует