Top.Mail.Ru

улица Главмосстроя, д. 14

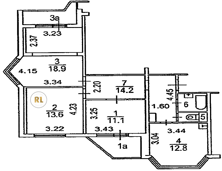
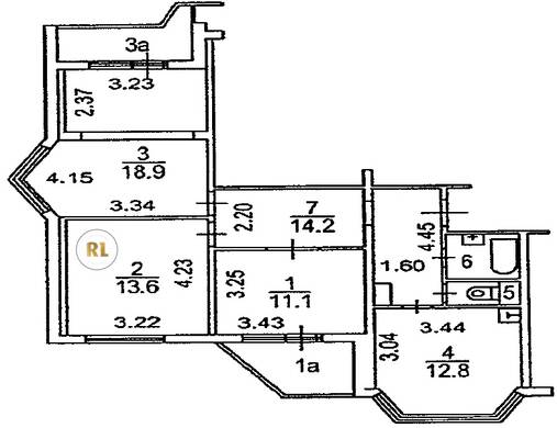
База каталог, Кол-во подъездов: 7, П-44T, Москва, Солнцево, Пассажирский лифт: 7, От метро: 980, Западный, да, Наименьшее кол-во этажей: 12, Наибольшее кол-во этажей: 25, Говорово, Кол-во помещений: 453, Кол-во нежилых помещений: 1, Год ввода в эксплуатацию: 2009, 3-комн, Кол-во жилых помещений: 452, дом 14, нет, да, да, да, да, да, Грузовых лифтов: 9, Год постройки: 2009, улица Главмосстроя, 37.409011, 55.654823
Свяжитесь со мной на счет цены
10 дн.
T55S654823L37S409011T

На карте


Условия сделки

Источник


Старт продаж

Возможно заинтересует