Top.Mail.Ru

Симферопольский бульвар, д. 14, к. 3

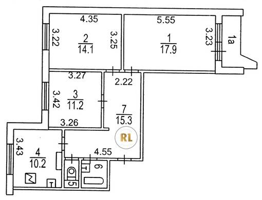
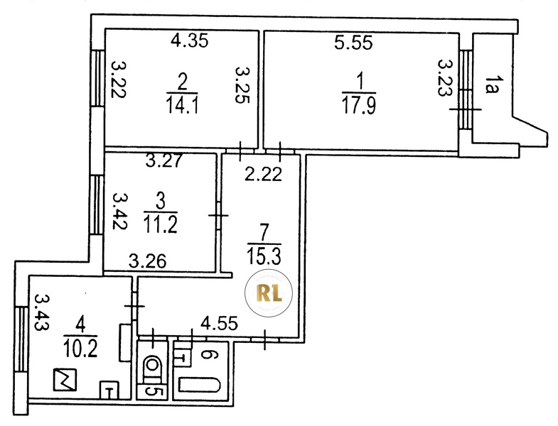
База каталог, Кол-во подъездов: 3, П-44, Москва, Зюзино, Площадь парковки: 0, Пассажирский лифт: 3, От метро: 460, Юго-Западный, нет, Наименьшее кол-во этажей: 17, Наибольшее кол-во этажей: 17, Каховская, Кол-во помещений: 199, Кол-во нежилых помещений: 0, Год ввода в эксплуатацию: 1999, 3-комн, Кол-во жилых помещений: 199, Не присвоен, дом 14, корпус 3, да, да, да, да, да, да, Грузовых лифтов: 3, Год постройки: 1999, Симферопольский бульвар, 37.604205, 55.654889
Свяжитесь со мной на счет цены
10 дн.
T55S654889L37S604205T

На карте


Условия сделки

Источник


Старт продаж

Возможно заинтересует