Top.Mail.Ru

Новомарьинская ул., д. 16, к. 1

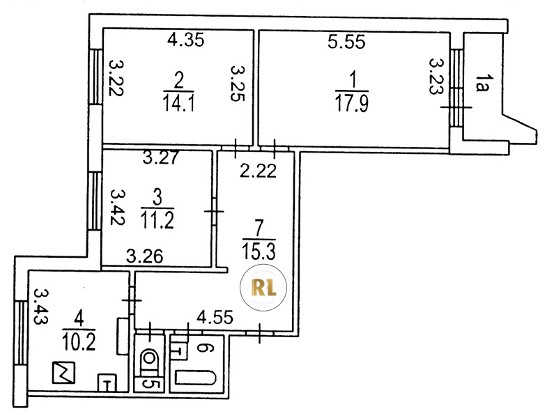
База каталог, Кол-во подъездов: 4, Имеется, П-44, Москва, Марьино, Площадь парковки: 0, Пассажирский лифт: 4, От метро: 990, Юго-Восточный, нет, Наименьшее кол-во этажей: 17, Наибольшее кол-во этажей: 17, Братиславская, Кол-во помещений: 270, Кол-во нежилых помещений: 6, Год ввода в эксплуатацию: 1995, 3-комн, Кол-во жилых помещений: 264, Не присвоен, дом 16, корпус 1, нет, да, да, да, да, да, Имеется, Грузовых лифтов: 4, Год постройки: 1995, Новомарьинская улица, 37.760494, 55.654980
Свяжитесь со мной на счет цены
10 дн.
T55S654980L37S760494T

На карте


Условия сделки

Источник


Старт продаж

Возможно заинтересует