Top.Mail.Ru

Новомарьинская ул., д. 11, к. 1

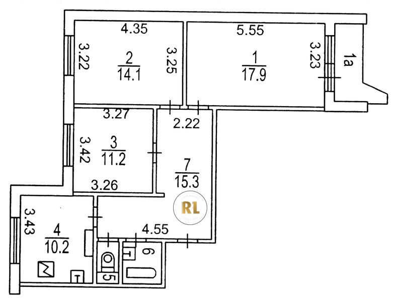
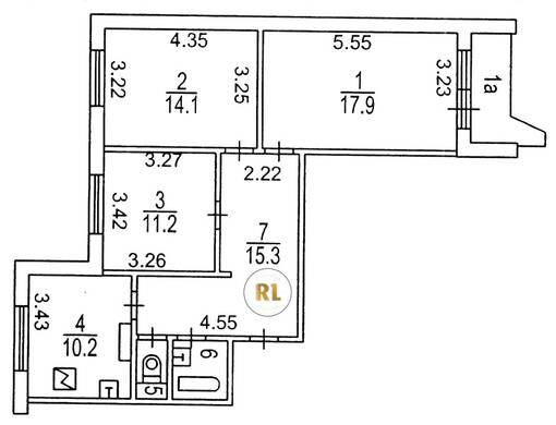
База каталог, Кол-во подъездов: 5, Имеется, П-44, Москва, Марьино, Площадь парковки: 0, Пассажирский лифт: 5, От метро: 890, Юго-Восточный, нет, Наименьшее кол-во этажей: 14, Наибольшее кол-во этажей: 14, Братиславская, Кол-во помещений: 287, Кол-во нежилых помещений: 9, Год ввода в эксплуатацию: 1996, 3-комн, Кол-во жилых помещений: 278, Не присвоен, дом 11, корпус 1, нет, да, да, да, да, да, Имеется, Грузовых лифтов: 5, Год постройки: 1996, Новомарьинская улица, 37.758186, 55.655117
Свяжитесь со мной на счет цены
10 дн.
T55S655117L37S758186T

На карте


Условия сделки

Источник


Старт продаж

Возможно заинтересует