Top.Mail.Ru

Люблинская ул., д. 157

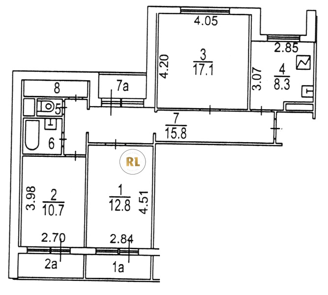
База каталог, Кол-во подъездов: 7, Имеется, П-55, Москва, Марьино, Площадь парковки: 0, Пассажирский лифт: 7, От метро: 510, Юго-Восточный, нет, Наименьшее кол-во этажей: 10, Наибольшее кол-во этажей: 14, Марьино, Кол-во помещений: 241, Кол-во нежилых помещений: 7, Год ввода в эксплуатацию: 1996, 3-комн, Кол-во жилых помещений: 234, Не присвоен, дом 157, да, да, да, да, да, да, Имеется, Грузовых лифтов: 7, Год постройки: 1996, Люблинская улица, 37.743947, 55.655209
Свяжитесь со мной на счет цены
10 дн.
T55S655209L37S743947T

На карте


Условия сделки

Источник


Старт продаж

Возможно заинтересует